















Clinton Corners House
Modern hillside house architecture defines the design approach of Clinton Corners House, a rural residence designed by Desai Chia Architecture in Clinton Corners, New York. Positioned within an open meadow landscape, the house is carefully embedded into the natural slope of the site to reduce visual impact and strengthen the connection between architecture and the surrounding countryside.
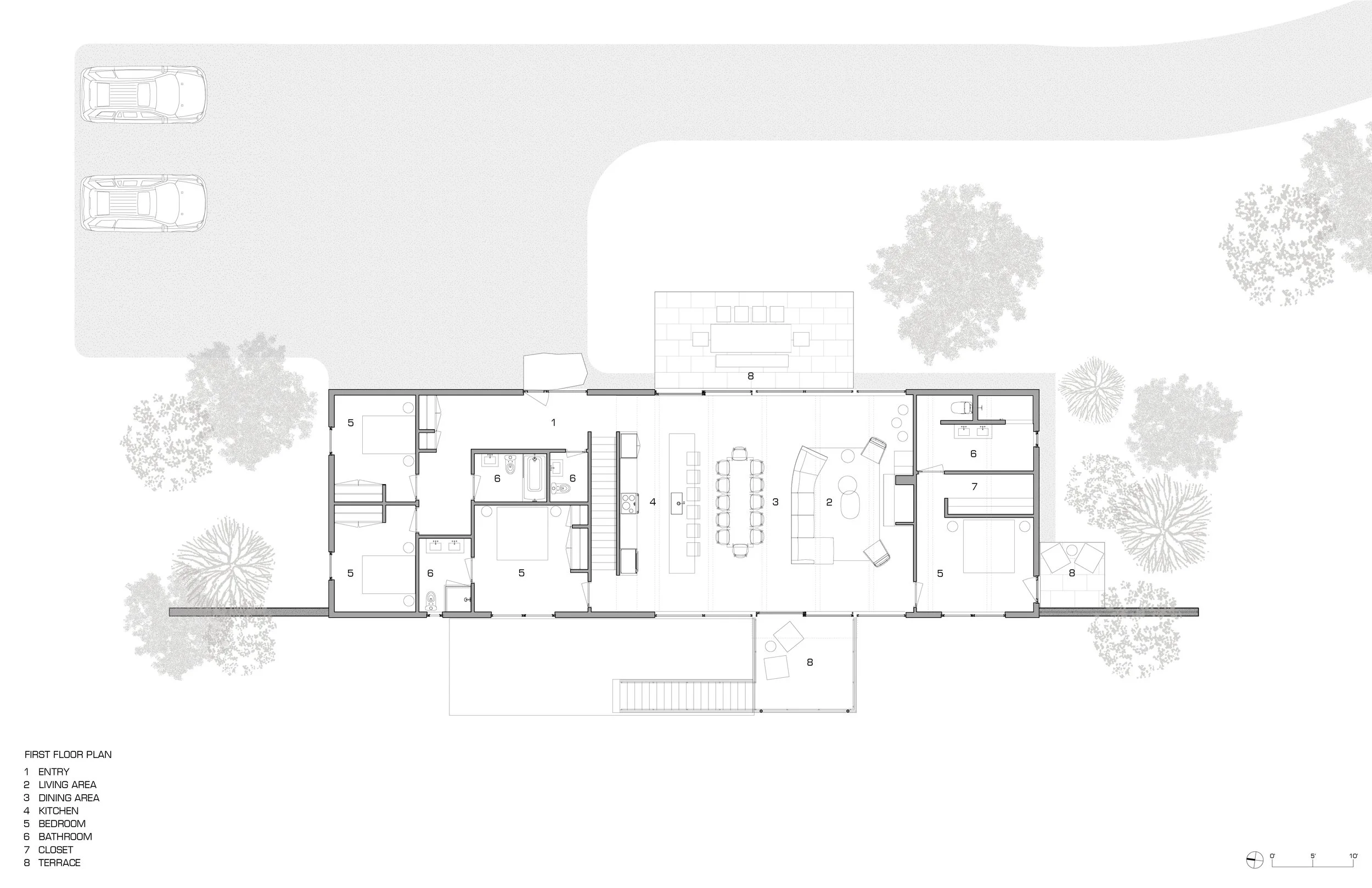
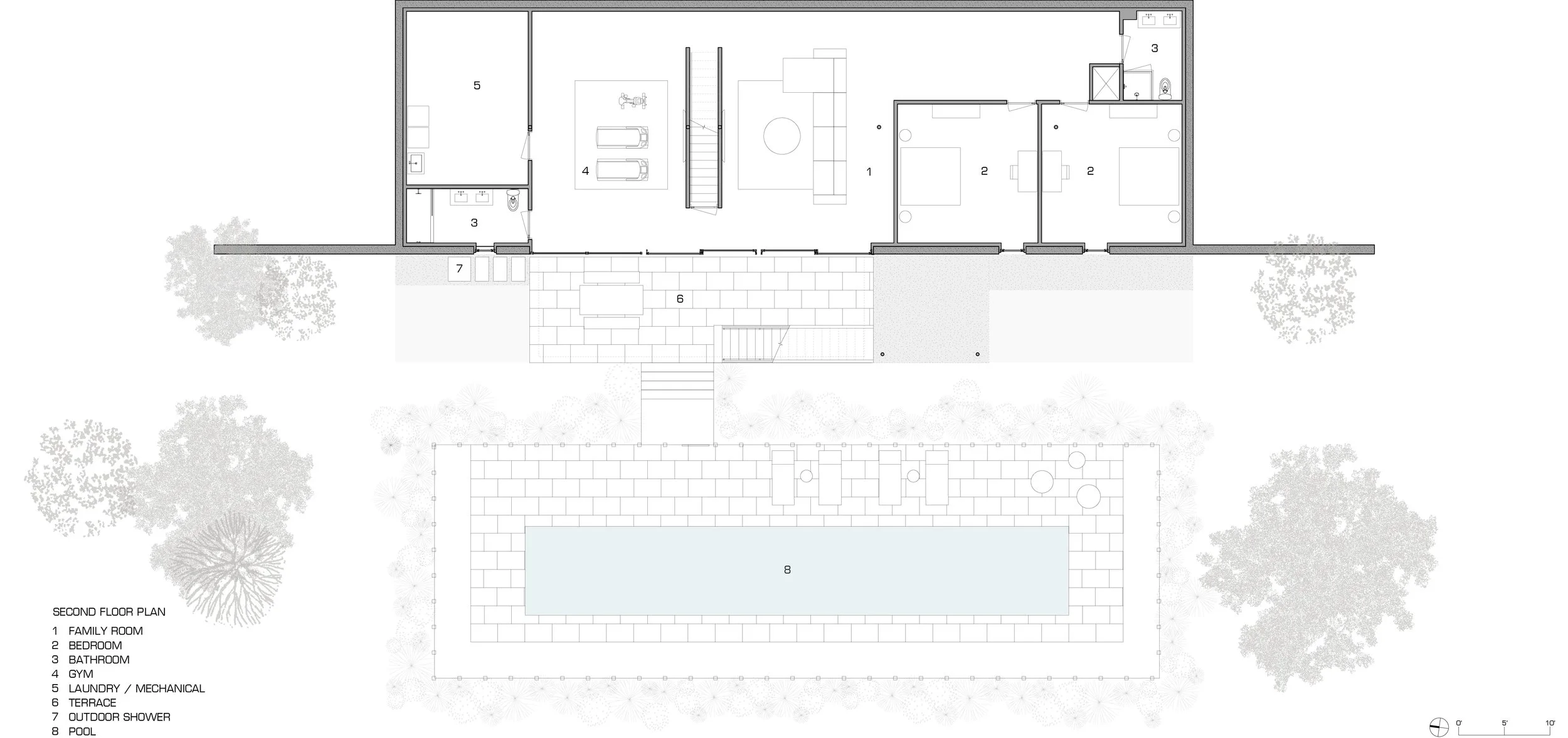
Approaching the property, the gravel driveway gently curves around the crest of a grassy hill, concealing the residence from the road. Only as visitors move further into the field does the building gradually reveal itself, emerging subtly from the terrain. The house initially appears as a single-story structure, but a concrete retaining wall positioned perpendicular to the hillside allows two levels to maintain direct ground-level access to the landscape. This strategy embeds the lower level into the slope, helping stabilize interior temperatures while visually integrating the building into the rolling topography.
The architectural language references the agricultural heritage of the region while presenting a contemporary interpretation. The building’s form draws inspiration from traditional barns commonly found across rural New York. Inside the main living area, this concept is expressed through a vaulted interior volume. Instead of typical heavy timber barn beams, slender metal tie rods span the space, creating a lighter structural expression while emphasizing the height and openness of the room.
At the center of the living space, a sculptural fireplace rises vertically, reinforcing the sense of height and acting as a focal point for the interior. Its integrated wood storage references functional elements found in nearby vernacular buildings while adding a geometric visual statement. Darker materials used in the kitchen echo the fireplace palette, anchoring the ends of the open gathering space. Meanwhile, wood flooring extends partially up the walls, producing a warm and tactile interior atmosphere suited for family living.
Circulation within the house runs parallel to the concrete retaining wall, creating a clear organizational spine. Along this path, carefully framed views open toward the surrounding meadow and forest landscapes. Expansive glazing on the east and west façades captures panoramic views of the rolling hills and tree canopy. Five outdoor terraces extend the living areas into the landscape—three located at the main level and two on the lower level—encouraging movement between interior and exterior spaces. A sculptural exterior stair connects the terraces and pool area, allowing fluid circulation between the home’s two levels of social space.
The residence was designed for a young family seeking a peaceful retreat from city life. With flexible living areas, generous outdoor spaces, and durable finishes suited to children and guests, the house creates an inviting environment for gatherings and everyday living. Through its restrained material palette, barn-inspired geometry, and integration with the hillside terrain, Clinton Corners House demonstrates how contemporary architecture can respectfully reinterpret rural building traditions.
More Single-Family House Projects
View all →







More Projects from United States
View all →






