







Office interior design for venture capital firms defines the spatial concept behind Spark Capital - Mercer, a 4,000-square-foot workplace designed by Desai Chia Architecture in SoHo, New York. Created for Spark Capital’s expanded New York office, the project supports permanent staff, partners, and visiting teams from the firm’s Boston and San Francisco offices. The brief called for a workplace that could accommodate focused work, presentations, informal collaboration, and fluid interaction across teams in a compact loft setting.
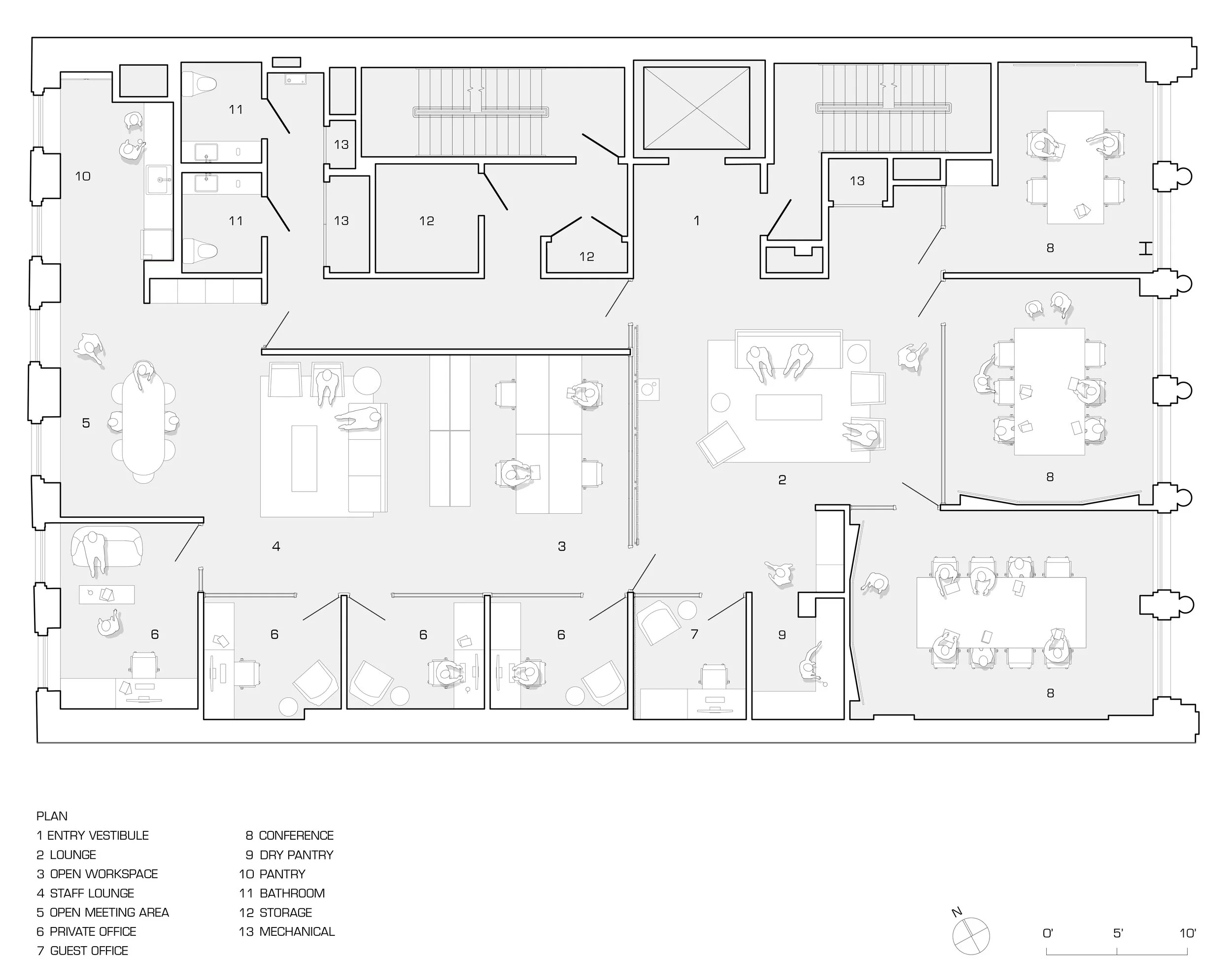
Located within an old industrial loft building, the office is organized around a reception lounge connected to three conference rooms with strong visual continuity. These conference rooms function both as brainstorming zones and formal presentation spaces, allowing the public-facing and internal areas of the office to remain interconnected rather than rigidly separated. This planning strategy reinforces the dynamic nature of the firm’s daily workflow and creates a spatial rhythm that feels open, collaborative, and efficient.
The design concept draws inspiration from traditional Japanese rock gardens, particularly the patterned formations that symbolize ripples in water. Desai Chia translated this metaphor into the office as an expression of Spark Capital’s influence across its portfolio companies and collaborators. The ripple motif appears throughout the project as both a visual language and a spatial device, helping transform the workplace into an environment that balances intensity with warmth.
A wood screen wall with CNC-milled ripple patterns separates the reception area from the staff workspace while still allowing light to pass through. Glass partitions provide acoustical separation, while circular openings positioned at the center of each ripple create framed views between public and private zones. Above, a custom ceiling installation of wood and light was developed as a floating canopy. Using molded wood veneer flitches, the architects created concentric forms with varying depths, bringing texture, movement, and a strong sculptural identity to the office interior.
The work area is planned with open desks at the center and private offices around the perimeter, allowing visiting teams to integrate easily into the space while maintaining direct access to partners. Near the pantry kitchen, a custom Work Bar provides a flexible setting for informal meetings and shared meals. Through its material warmth, layered lighting, and concept-driven detailing, Spark Capital - Mercer creates a workplace that reflects collaboration, speed, and thoughtful exchange of ideas while embodying the client’s brand identity.
Collaboration
Completed