














Osprey House
Coastal house architecture defines the concept behind Osprey House, a private residence designed by Desai Chia Architecture on Shelter Island, New York. Located at the edge of the Mashomack Preserve—one of the region’s largest protected coastal ecosystems—the house was conceived as a quiet architectural presence embedded within the surrounding marshland, woodland, and tidal landscape. The project explores how a home can coexist with a sensitive natural environment while still offering expansive views and contemporary living spaces.
The house was designed for a local contractor and his family who wanted a residence that would encourage daily engagement with nature, including kayaking, beach walks, and outdoor living. The design draws inspiration from the native osprey birds that populate the surrounding preserve. Their elevated nests and marine habitat informed the organization, material palette, and architectural expression of the house. The building is conceived almost like a raised observation point within the landscape, allowing the occupants to observe wildlife and the shifting coastal environment.
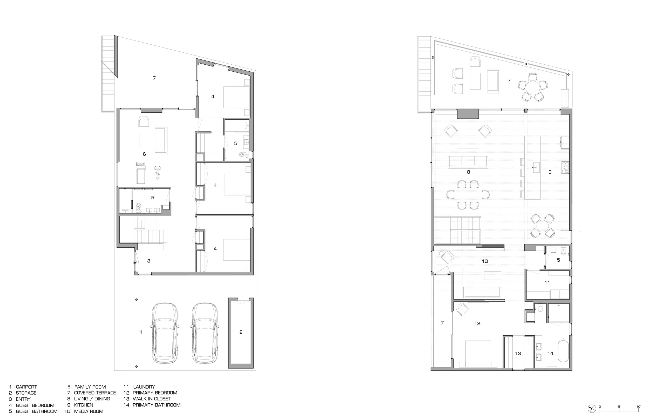
To maximize views of the surrounding marshes and waterways, the architects adopted an “upside-down” house layout. Social and communal spaces—including the living room, kitchen, and terrace—are placed on the second floor, allowing them to capture panoramic views of the coastal ecosystem. Private spaces such as bedrooms and a family room are located on the ground floor, providing privacy while maintaining a close connection to the natural surroundings.
The architecture blends into the wooded site through a carefully considered material strategy. The exterior is clad in vertical gray wood siding inspired by the bird-watching “blinds” found in the nearby nature preserve. The wood is treated using the traditional Japanese shou sugi ban charring technique, which improves durability while giving the façade a driftwood-like tone that harmonizes with the coastal landscape.
Large glazed openings along the northern façade introduce soft daylight throughout the interior while framing views of the marsh and surrounding trees. Clerestory windows and exposed timber beams enhance the spatial experience inside, emphasizing height and light. Toward the water, the building’s geometry subtly projects outward, forming covered terraces and outdoor gathering areas that extend the living spaces into the landscape.
Through its careful orientation, restrained material palette, and integration with the site’s ecology, Osprey House demonstrates how residential architecture can become part of the natural environment rather than an object placed upon it.