Peacock Hail Cafe

Hail2025Cafe5166 sqft

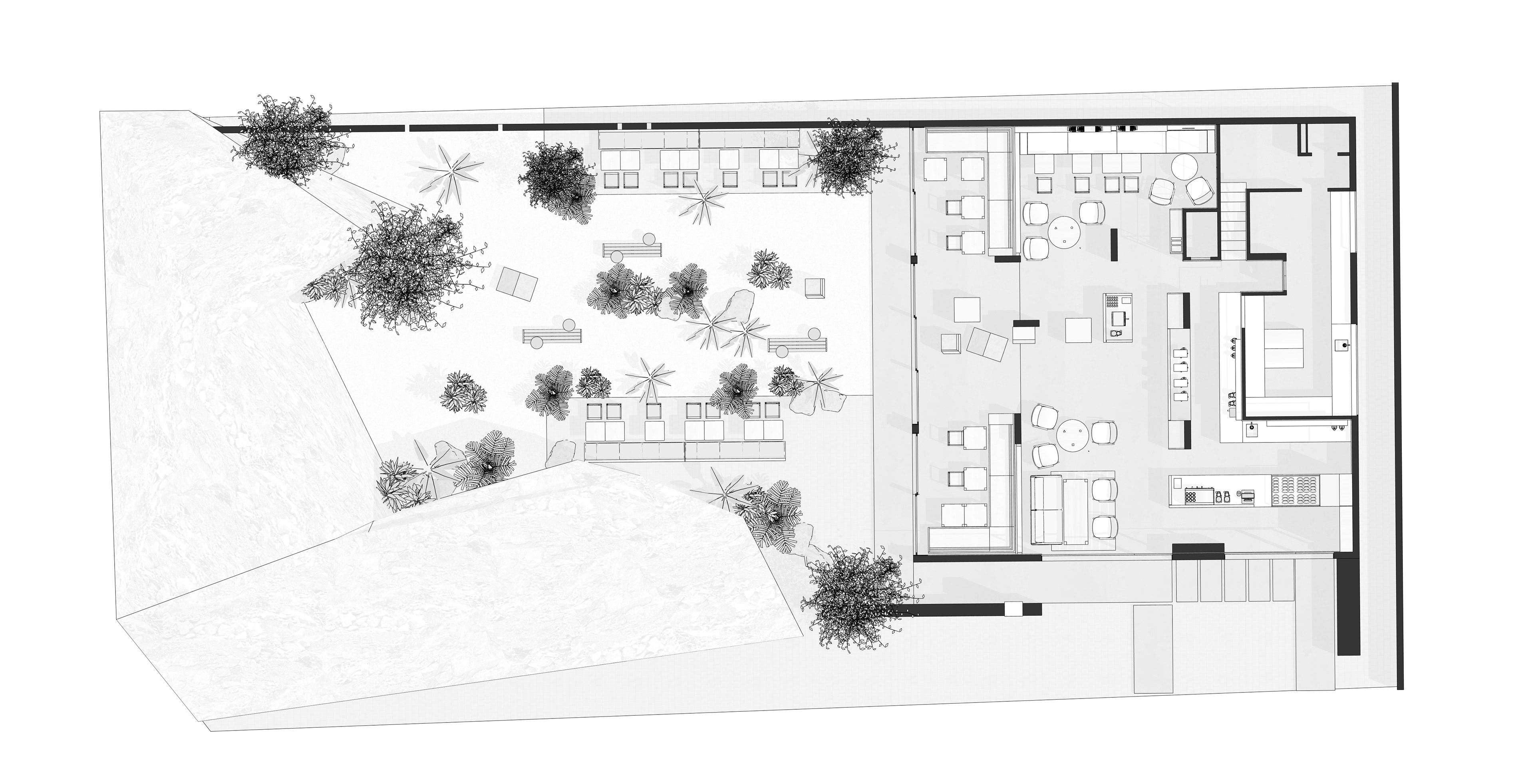
Peacock Hail Cafe, designed by MOVS Studio, is a hospitality project set against a dramatic natural backdrop in Hail, Saudi Arabia. The project redefines contemporary Arabian hospitality by integrating architecture directly with a natural rock formation, around which the entire spatial concept is developed. At the core of the design is an open courtyard carved directly into the existing rock, which becomes the central organizing element of the café. Rather than removing or masking the natural condition of the site, the architecture embraces it, transforming a site constraint into the defining spatial experience. This courtyard acts as both a visual anchor and a climatic device, connecting interior spaces with nature. The interior spaces are arranged around this central void, creating a continuous relationship between built elements and the natural landscape. Handcrafted interiors are carefully integrated with the rugged texture of the rock, producing a contrast between refined architectural surfaces and raw natural material. This dialogue establishes a unique atmosphere where architecture feels embedded within its environment rather than placed upon it. Materiality plays a key role in reinforcing this concept. The use of stone, wood, and neutral finishes enhances the tactile quality of the space, while exposed structural and service elements contribute to an honest architectural expression. The palette remains restrained, allowing the rock formation and spatial composition to remain the focal point. Spatially, the project balances openness and enclosure. The courtyard introduces light and air into the interior, while surrounding seating areas maintain a sense of intimacy and protection. This layered organization creates a dynamic sequence of spaces, where users move between shaded interiors and open, nature-oriented environments. Ultimately, Peacock Hail Cafe transforms a challenging site into an architectural narrative. Through the integration of natural rock, courtyard typology, and crafted interiors, the project creates a distinctive hospitality experience rooted in context, materiality, and spatial continuity.