






Residential housing architecture in Amsterdam is increasingly shaped by the need to balance density with livability. The BASIL project by Elephant Studio explores this challenge through an innovative residential typology that prioritizes spatial efficiency, daylight, and shared community infrastructure. Completed in 2024, the development introduces a distinctive structural concept composed of repeated architectural “tables” arranged around a central courtyard.
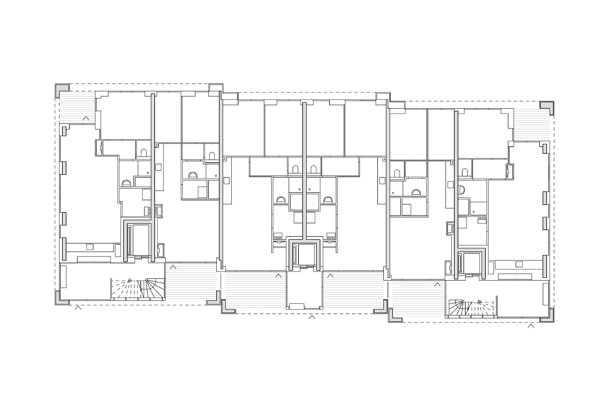
The project contains 250 compact rental apartments designed to maximize quality of life within a dense urban environment. Each dwelling benefits from two or three open façades, ensuring generous daylight penetration and natural ventilation. The design also guarantees that every living space is connected to an outdoor balcony oriented toward the south or west, providing optimal sunlight exposure and an extension of the interior living area.
A defining feature of the architecture is the structural system of 96 “table” modules, which collectively organize the building’s massing and circulation. Each module contains two apartments and forms both the structural framework and the terrace system of the complex. The tabletop element functions simultaneously as a parapet for the apartment below and a balustrade for the terrace above, integrating architectural expression with structural logic.
Another key innovation in the project is Elephant Studio’s Coreless® circulation typology. Instead of conventional core-based apartment circulation, two homes share a single lift stop. This approach dramatically reduces circulation space while increasing the usable area within each apartment. By eliminating the need for a central core in every segment of the building, the system allows larger terraces and more generous exterior spaces while maintaining a compact footprint.
The design was also developed using Elephant Studio’s parametric design tools, enabling data-driven optimization of building form, density, and environmental performance. Through computational modeling, the architects were able to balance high urban density with improved residential quality, ensuring that compact living units still provide access to light, air, and outdoor space.
Overall, BASIL demonstrates how innovative structural typologies and computational design strategies can transform dense residential developments into high-quality living environments. The project reflects Elephant Studio’s broader philosophy of combining architecture, technology, and urban economics to create adaptable and sustainable urban housing.